実際に見学に行く リンクバナー

資料請求はこちら リンクバナー

メニューを開く

メガメニュー を開く

メガメニュー を閉じる

中古住宅

解体引渡🎵 小・中学校すぐ近く🏫 国道339から一本入った、静かで便利な立地✨

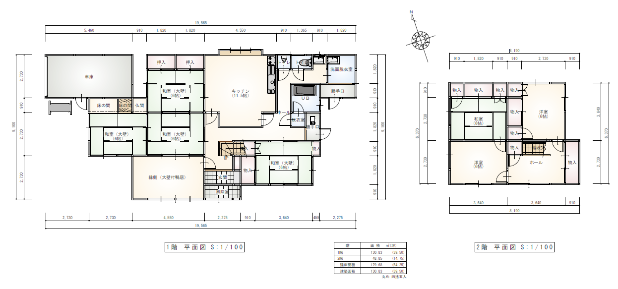
物件名:【中古住宅】五所川原市字鎌谷町523-14

価格:800万円

住所:五所川原市字鎌谷町504-1

解体引渡🎵 小・中学校すぐ近く🏫 国道339から一本入った、静かで便利な立地✨
交通 五能線『五所川原駅』より車で4分
土地面積 346.22㎡(104.73坪)
建物面積 1階130.83㎡(39.5坪)、2階48.85㎡(14.75坪)
坪単価 7.6万円/坪
築年数 築50年(昭和50年建築)
物件種別 売家
その他費用
仲介手数料 33万円
土地権利 所有権
地目 宅地
地勢 平坦
現況 上物あり
建ぺい率 60%
容積率 200%
接道状況 西側公道(幅員6.0m)に16.6m接道
私道負担面積 なし
都市計画 非線引き区域
用途地域 第二種中高層住居専用地域
国土法
法令上の制限
ライフライン 上下水道、電気引き込みあり
構造 木造亜鉛メッキ鋼板葺 2階建て
取引態様 一般媒介
契約条件
引渡時期 要相談
小中学校区 南小学校、五所川原第一中学校
特記事項 上物解体後の引渡しとなります。現況引渡しの場合は値引き可能です。
情報更新日 2025年12月
次回更新予定日 2026年4月

メールでのお問い合わせ

  • ・お問い合わせフォームに必要事項のご入力をして送信ボタンをクリックしてください。
  • ・メールアドレスは正しくご入力下さい(弊社より返信メールが届きません。)
  • ・半角カナ入力は文字化けの原因になりますので、全角カナでご入力頂きますようお願いします。
  • 【必須】項目は必ず入力してください。
  • ・お使いのメールサービス、メールソフト、ウィルス対策ソフト等の設定により「迷惑メール」と認識され、メールが届かない場合があります。
    以下のドメインを受信できるように設定をお願い致します。
    受信設定ドメイン:kon-koum.co.jp

ご入力内容をご確認ください。

入力不備の項目がございます。
お手数ですが、もう一度入力内容をご確認ください。

お名前
お名前(姓)を正しく入力して下さい。
お名前(名)を正しく入力して下さい。

ふりがな
ふりがな(せい)を正しく入力して下さい。
ふりがな(めい)を正しく入力して下さい。

電話番号
電話番号を正しく入力してください。
電話番号を正しく入力してください。
電話番号を正しく入力してください。

メールアドレス
メールアドレスを正しく入力して下さい。

郵便番号
郵便番号(上3桁)を正しく入力してください。
郵便番号(下4桁)を正しく入力してください。

-

ご住所
ご住所を正しく入力して下さい。

内覧希望
内覧希望を選択してください

内覧希望日

その他・備考

個人情報保護方針

株式会社今工務所(以下,「当社」といいます。)は、安心して当社の商品や情報サービスをご利用いただけるよう、個人情報保護に関連する法令及びガイドライン等を遵守し、個人情報・プライバシー(以下、個人情報と称します)について、細心の注意をもって管理、運営してまいります。当社の「個人情報(プライバシー)保護の考え方」は以下に記載いたします。

個人情報の取得

当社は、お客様に関する情報を取得する場合、利用目的を明確にし、適正に取得します。また、以下は例示であり、情報の具体的内容によっては個人情報にあたらない場合もあります。

お客様から提供される情報

・氏名(フリガナを含む)、住所、電話番号(携帯、FAXを含む)、電子メールアドレス、携帯メールアドレス、生年月日、性別などお客様から提供される一切の情報 ・サービス提供者がサービスとは別に取得した個人情報で当社所定の手続きにより、当社に提供された情報

サービスの利用に関して取得される情報

・お客様が当社またはサービス提供者が提供する商品または役務の購入、その他の取引を申し込まれた場合に、お客様を識別できる情報を紐づいた状態での取引履歴に関する情報
・当社または提携ポイントサービスの獲得、利用に関する情報
・電話や電子メールその他の手段により、当社またはサービス提供者に質問、アンケート回答、キャンペーン参加、サービス評価などを行った場合の発言や記載内容に関する情報

システム利用、アクセスしたことにより機械的に取得される情報

・お客様の情報機器がインターネットに接続する際に使用されるIPアドレス、通信機器の機体識別に関する情報
・当社の運営するWEBサイトへアクセスしたことにより取得された、お使いのブラウザの種類、オペレーティングシステム、プラットフォームなどの他、お客様が閲覧したページ(URL)、閲覧した日時などに関する情報
・上記以外に、クッキー(cookie)、ウェブビーコン(web beacon)の技術を利用して取得したアクセス情報など、お客様が当社のサービスを利用されるごとに、自動的に収集、保管される情報
なお、当社は他の事業者等より適正に個人情報(利用履歴含む)を取得し、次項「個人情報の利用」に記載のとおり利用する場合があります。 ※「サービス提供者」とは、当社システムを通じて取引対象となる商品、役務を提供する者をいいます。

個人情報の利用

当社は、個人情報を、事前に明示した利用目的の範囲内で利用します。
また、他の事業者等より適正に取得した個人情報(利用履歴含む)は、以下のとおり利用します。

お客様が当社のサービスを利用する場合

・当社のサービスを利用する場合、ログイン時およびログイン後における本人認証、各種画面におけるお客様情報の自動表示

当社が提供する取引の遂行

・お客様との取引、お問い合わせ対応、アフターサービス、その他取引遂行にあたって必要な業務
商品・サービス情報の発信またはマーケティングなど
・ダイレクトメール、電子メールを含む各種通知手段によって、当社が有益と判断した企業のさまざま商品情報やサービス情報を配信
・取得した情報を、分析、集計することで傾向データやマーケティングデータを作成し、当社や他社の会員分析、商品分析等
なお、商品情報やサービス情報の停止を希望される場合は、当社指定の方法または、対応窓口にお申し出ください。

個人情報の提供

当社は、個人情報について、あらかじめご本人から同意をいただいた提供先以外の第三者に提供はいたしません。

個人情報の管理・安全対策

当社は、個人情報の取扱いに関する法令、国が定める指針、その他規範を遵守します。また、個人情報への不正アクセス、個人情報の滅失、き損、改ざんおよび漏えい等のリスクに対して適切な予防措置を講じ、個人情報の安全性、正確性の確保を図ります。問題が発生した場合には、被害の最小限化に努めるとともに、速やかに是正措置を実施します。

個人情報に関するお問い合わせ

個人情報の取扱いに関するご意見、お問い合わせは、 下記窓口までお寄せください。
お問合わせ窓口  電話 0173-34-3361


プライバシーポリシーに同意した上でお問い合わせください。

© 2024 株式会社今工務所. Created by ABABAI Co.,Ltd.